HG Makelaars

BAKEL, Berkengraaf 21

Omschrijving & details, alle foto's

Omschrijving

In de gewilde wijk Soersel aan een rustige straat, vrij gelegen tegenover een groene weide staat deze prachtige, mooi afgewerkte, royale twee onder één kap woning met berging/ garage.
De ruime woonkamer is voorzien van een open keuken en openslaande tuindeuren naar de achtertuin. Vanuit hier heeft u ook toegang tot de bijkeuken/ portaal. Vanuit het portaal bereikt u de berging/ garage, het toilet en de achtertuin.
Dit huis beschikt verder over 3 slaapkamers en royale badkamer op de eerste verdieping. Via een vaste trap komt u op de grote voorzolder. Vanuit hier heeft u toegang tot een ruime 4e slaapkamer voorzien van een dakkapel.
De mooi aangelegde, privacy biedende tuin is een heerlijke plek om te ontspannen!
Parkeren kunt u op eigen terrein. Op loopafstand van een speeltuintje en veel groen. Dichtbij recreatie, scholen en het centrum van Bakel.

Algemeen
Bouwjaar Ca. 2010
Perceeloppervlakte Ca. 287 m2
Woonoppervlakte Ca. 145 m2
Woninginhoud Ca. 565 m3
Berging/ garage Ca. 15 m2

Interesse? Bel voor een afspraak naar Pieter van den Hurk 06 28 123 755.

Bijzonderheden
- Alle kozijnen zijn in kunststof uitgevoerd met dubbele beglazing (Isopane isolatieglas).
- Alle ramen zijn uitgevoerd met draai- kiepramen deels voorzien van raamhorren.
- De gehele begane grond (excl. de berging) is voorzien van een antraciet natuurstenen vloer met hoge witte plinten.
- De woonkamer, hal en badkamer zijn voorzien van vloerverwarming.
- De wanden en plafonds zijn voorzien van glad stucwerk.
- Het gehele huis heeft mechanische ventilatie.
- Alle binnendeuren zijn paneeldeuren met fraai hang- en sluitwerk.
- De eerste en tweede verdieping zijn mooi afgewerkt met een doorlopende laminaatvloer.
- De ramen van de slaapkamers op de 1e verdieping beschikken over elektrische inbouwrolluiken.
- Dit huis heeft een prachtige ligging aan de rand van Bakel midden in het groen en aan de voorzijde geheel vrij gelegen!

Indeling woning

Begane grond
Hal
U betreedt de woning aan de voorzijde. Vanuit de hal heeft u toegang tot de meterkast, de woonkamer en de trap naar de eerste verdieping. De voordeur is voorzien van melkglas.

Meterkast
De meterkast is uitgevoerd met 11 groepen en de nodige aardlekschakelaars. Tevens bevindt zich hier de gasmeter en de watermeter. Ook is er Glasvezel aanwezig.

Woonkamer
De royale woonkamer heeft aan de achterzijde een ruim zitgedeelte met aan de voorzijde de open keuken grenzend aan het eetgedeelte. Vanuit hier heeft u toegang tot een trapkast.
De woonkamer is een heerlijke ruimte door zijn grote raampartijen aan de achterzijde, voorzien van openslaande tuindeuren. Wat u prachtig uitzicht geeft over de achtertuin. Het plafond is voorzien van inbouwspots.
Via een deur aan de achterzijde heeft u toegang tot de bijkeuken.

Keuken
De keuken is geplaatst in een rechte opstelling met een kookeiland. De lichte kleur kasten met het ‘houtlook’ aanrechtblad geeft een mooi geheel. Het raam boven het aanrecht en zijkant geven voldoende lichtinval.

Verder is aanwezig
- Combi oven/ magnetron (Whirlpool)
- Inbouwvaatwasser (Bosch)
- Onderkasten
- Spoelbak
- Inbouwspots boven het aanrecht

Kookeiland is aanwezig
- Inductie 4 pits kookplaat (Miele)
- RVS afzuigkap
- Kasten en lades rondom

Bijkeuken
Deze ruimte is voorzien van de witgoedaansluitingen waarbij de wanden deels betegeld zijn. Vanuit hier heeft u toegang tot het toilet, de garage/ berging en de achtertuin.

Toilet
Het toilet is geheel betegeld voorzien van een fonteintje en een raam in de achtergevel.

Berging/ garage
Deze mooi afgewerkte ruimte is afgewerkt met een tegelvloer, de wanden zijn schoonmetselwerk en het plafond is gestuct.

Verdieping
Via de hardhouten trap met houten leuning en balustrade komt u op de ruime overloop. Vanuit hier heeft u toegang tot de 3 slaapkamers, de badkamer en de trap naar de zolderverdieping.

Slaapkamer 1
Deze royale ouderslaapkamer is gesitueerd aan de achterzijde voorzien van televisieaansluiting.

Badkamer
De geheel betegelde en prachtige badkamer is voorzien van een dubbele wastafel met badmeubel een spiegelkast met verlichting, een designradiator (voor extra comfort), een ligbad, een wandtoilet en een ruime inloopdouche. Het raam zorgt voor natuurlijk daglicht en extra ventilatie. Het gehele huis, dus ook de badkamer is voorzien van een afzuigsysteem. Een heerlijke ruimte om te relaxen en ontspannen.

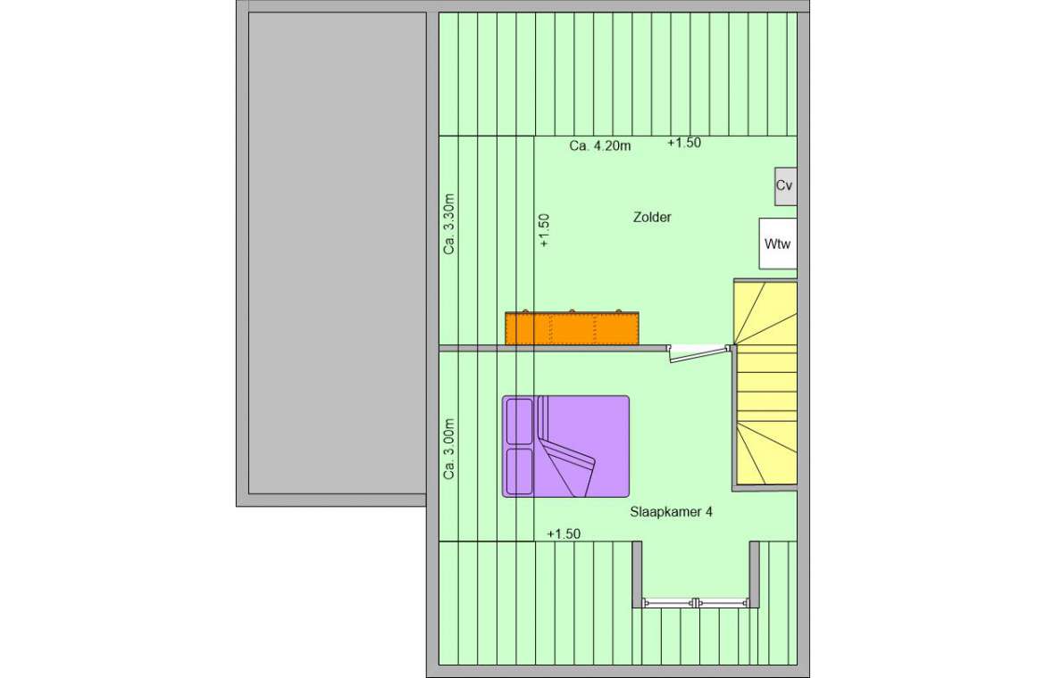
Zolderverdieping
Via de vaste trap (in dezelfde fraaie uitvoering) komt u op de voorzolder. Daar is de CV ketel (Intergas uit ca. 2010) en de WTW ventilatie unit geplaatst. Verder is deze ruimte geschikt als bijv. extra speelruimte of bergruimte. Vanuit hier heeft u toegang tot de 4e slaapkamer. Er bestaat de mogelijkheid hier een 5e slaapkamer te maken.

Slaapkamer 4
Deze kamer ligt aan de voorzijde en is voorzien van een dakkapel.

Buitenzijde
De woning is voorzien van een oprit, voor- en achtertuin.
De onderhoudsvriendelijke voortuin is afgewerkt met siergrind en een bestraat pad naar de voordeur. De oprit is ook met dezelfde stenen bestraat.

Achtertuin
De mooi aangelegde achtertuin heeft een zitgedeelte aan de voor- en achterzijde beiden voorzien van een pergola.
De tuin is voorzien van een buitenkraantje, elektra en tuinverlichting. In de overstek van het dak zijn aan de voor- en achterzijde inbouwspots aanwezig.
De fraaie en privacy biedende tuin heeft mooie beplanting zoals o.a. een Taxus- en Beukenhaag, Lavendel en boompjes en is deels omringd door een hekwerk begroeid met Hedera en een houten schutting. Zeker een heerlijke plek om te kunnen genieten van het buitenleven!

Ligging
Deze woning is prachtige gelegen midden in het groen. Met een speeltuintje en extra parkeergelegenheid nabij. Ook kunt u parkeren op eigen terrein. Rustig gelegen aan de rand van Bakel dichtbij het centrum met zijn vele voorzieningen.

Overig
Aanvaarding in overleg, nog nader te bepalen.
Ondanks dat deze brochure en teksten met zorg zijn samengesteld kunnen er geen rechten aan worden ontleend. Maten, inhoud e.d. dient u te lezen als circa.

Bent u enthousiast over deze prachtige woning voorzien van een garage, een royale woonkamer, open keuken, bijkeuken en 4 slaapkamers? Maak dan snel een afspraak.
Bel naar Pieter van den Hurk 06 28 123 755.

Details

  • Prijs: €389.000 kosten koper
  • Status: Verkocht
  • Verdiepingen: 3 verdiepingen
  • Kamers: 5 kamers (4 slaapkamers )
  • Oppervlakte perceel: 287m² perceel
  • Inhoud: 565 m³
  • Garage: aangebouwd steen
  • Bouwjaar: 2010

Extra informatie

  • Soort woning: eengezinswoning
  • Type woning: 2-onder-1-kapwoning
  • Huidige bestemming: Woonruimte